$895,000 - $925,000

South Wentworth Falls Cottage - Turn Key Ready

This home is perhaps the epitome of mountain living. Walk straight into a relaxed new lifestyle with all the work done for you in the stylish timeless cottage. Newly constructed, it offers five-star contemporary living in a peaceful location in arguably Wentworth Falls most desired streets, ideally set close to all local amenities.

features include:
- Solid southern beech timber floors to living areas; premium stain-resistant carpet to bedrooms
- Elegant country-style kitchen with 40mm stone bench tops and quality stainless steel appliances
- Impressive main bathroom features deep metal bath and frameless glass shower
- Master bedroom with four-door mirrored robe, ensuite and French doors to rear entertainer's deck
- Built-in robes with drawers to second and third bedrooms; custom curtains and blinds throughout
- Beautifully landscaped gardens on fully fenced flat block; large external shed or workshop
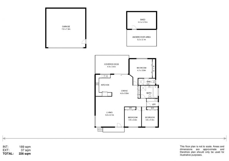
- Huge double garage with provision for two cars plus additional storage
-ducted natural gas heating and gas instantaneous hot water
-North facing aspect

High ceilings with decorative plaster cornices plus ornate skirting and architraves beautifully compliment solid southern beech timber floors to create an elegant living environment in this quality home.

The quality continues in the elegant country-style kitchen that presents 40mm stone bench tops and premium cabinetry, along with an induction cooktop, Westinghouse multi-function oven with separate grill, and Bosch stainless steel dishwasher.

The stunning main bathroom also impresses with deep metal bath and frameless glass shower, and there is quality stain-resistant carpet to all three bedrooms.

There are also built-in robes with drawers to the second and third bedrooms, plus a four-door mirrored robe, ensuite, and French door access to the rear deck from the master bedroom.

Timber front and rear decks under the main roof provide plenty of alfresco living space, and join the beautifully landscaped gardens on the rare, fully fenced flat block.

The huge 7 metre by 7 meter double lock-up garage with high ceiling features an insulated panel lift door and, and an additional 5x5m workshop provides plenty of hobby space.

For more information or to organise a private viewing contact Brenden Purcell on 0413 630 226.

3 2 2  

Total online views 456

Share with Friend

Contact the Agent

Brenden Purcell

Brenden Purcell

View My Profile

Phone 0413 630 226 

Mobile