$615,000

Mountains Character Cottage In Superb Location

This character cottage has had a total makeover and offers a stylish atmosphere. Ideal for a first home, weekender or downsizer. Set in a handy spot right across the road from Hazelbrook Primary School and an easy 5 minute stroll to the shops and train station.

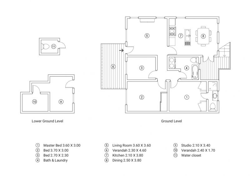
With all the hard work done, its move in ready and offers 3 bedrooms, main with robe and en-suite, stunning hardwood floors, new country style eat in kitchen, slow combustion heating and reverse cycle air conditioning. Sited on over 1600sqms of private gardens, with a brand new driveway providing loads of off street parking.

Please contact Brenden Purcell or Rowan Stubbs for more information or to book your private inspection.


Disclaimer: We have obtained all information in this document from sources we believe to be reliable; however, we cannot guarantee its accuracy. Prospective purchasers are advised to carry out their own investigation

3 2  

Land Size: 1669m2

Total online views 182

Share with Friend

Contact the Agent

Brenden Purcell

Brenden Purcell

View My Profile

Phone 0413 630 226 

Mobile