Undisclosed

Designer Mountains Cottage with subdivision potential (STCA)

Classic mountains weatherboard cottage, featured in past issues of
Inside Out Magazine, Country Style, Donna Hay Magazine and Sunday
Style offers comfortable, contemporary living in a highly desirable,
village environment.

Originally constructed in 1910, and has been ushered into the 21st century with the addition of a contemporary rear barn extension that both sympathises with the original features of the cottage and also offers the luxury of a generous, modern living space.

Located in a quiet cul-de-sac, the cottage rests on some 2500sqm of
flat, subdividable land. Follow the front path through the hedged rose garden and up the stairs onto the original bullnose verandah. Sets of French doors open onto the verandah from the front 2 bedrooms, providing private views over the garden and adjoining bushland.

Inside, a monochromatic, sophisticated colour palette of contemporary black japan floors and constrasting white wainscot panelled walls, successfully contributes to the seamless fusion of the two spaces. Original features such as a decorative fireplace in the front bedroom and vintage enamel pendant lights in all rooms and hallways ground the cottage within its historical context and at the same time propel it forward into modernity. These original
features juxtapose perfectly with the contemporary sliding barn doors along the main hallway and the addition of gas central heating throughout the home ensures a level of modern comfort through the cold months.

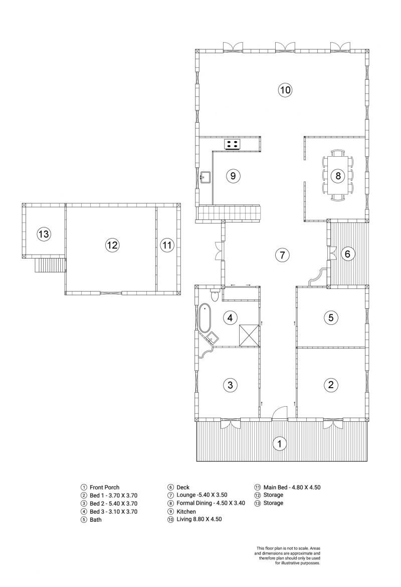
Accommodation consists of 3 double bedrooms in the front cottage and
a generous loft master bedroom, with walk through wardrobe and custom handmade wallpaper in the adjoining barn.

Set over two levels, the extension offers a French door flanked breezeway, with wood burning stove. The breezeway provides a walk through transition from the cottage to the barn. A large office space, which could double as a formal dining room, leads through to a sleek modern kitchen featuring a commercial grade, charcoal grey enamel Nostalgia Ilve 9 burner gas hub with 2 ovens and accompanying enamel charcoal grey rangehood. The impressive open plan lounge and dining space utilizes the bones of the barn and claims 6metre high cathedral ceilings and three sets of French doors that lead out onto a hedged terrace space overlooking lawns and mature fruit trees which is conducive for relaxed mountains living.

Cool, contemporary living with a nostalgic, authentic edge.

4 1 2  

Land Size: 2519m2

Total online views 2557

Share with Friend

Contact the Agent

Brenden Purcell

Brenden Purcell

View My Profile

Phone 0413 630 226 

Mobile